Bari San Pasquale - Appartamento di 3 Vani in Vendita
In trattativa

Se non hai tempo per seguire i lavori di ristrutturazione, noi abbiamo quelo che fa' al caso tuo!

Appartamento di 3 vani + accessori di 70 mq circa completamente ristrutturato nuovo e rifinito sito al secondo piano in stabile angolare munito di ascensore, ubicato a breve distanza dal sottopasso Luigi di Savoia il quale collega il quartiere San Pasquale al centro della città di Bari preciamente in Via Pisacane.

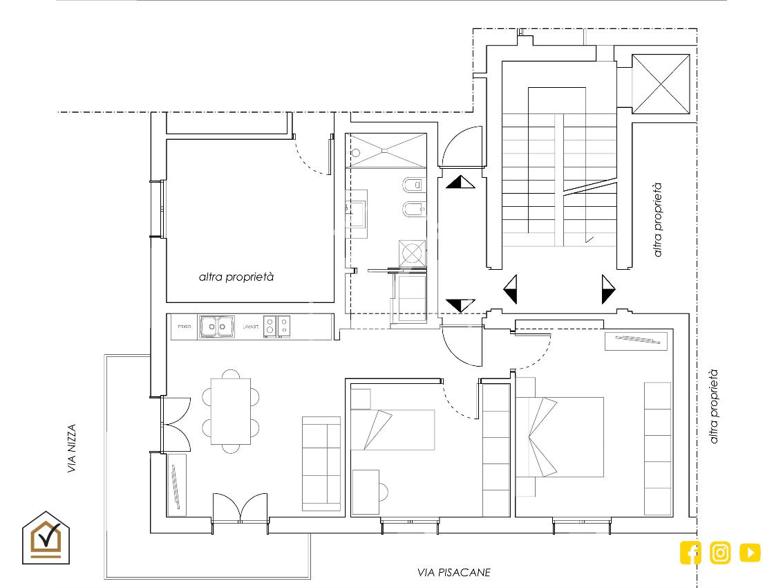
Al nostro ingresso, un disimpegno arricchito da un ribasso in cartongesso ci conduce nelle due accoglienti camere da letto entrambe con affaccio su Via Pisacane; proseguendo abbiamo accesso ad una confortevole e luminosa zona open-space dotata di balcone con affaccio angolare ed infine troviamo un comodissimo ripostiglio presente nell'antibagno ed il bagno con sanitari sospesi effetto ceramica marca Vitra round o simile, rivestimento pareti effetto marmo, un termoarredo collegato all'impianto elettrico e una composizione doccia Jacuzzi Gun o simile con piatto doccia effetto pietra.

La ristrutturazione dell'appartamento avverà in maniera integrale, completa delle certificazioni in merito:

-All'impianto elettrico: con installazione di placche ed interruttori marca Elettro o simile colore bianco o nero.

-All'impianto idrico.

Ogni stanza sarà caratterizzata da una completa tinteggiatura bianca, da una pavimentazione in gres porcellanato effetto legno 120x20 e da un battiscopa in MDF/legno bianco. La porta d'ingresso avrà un pannello interno bianco con ferramenta cromo satinata e le porte interne saranno a battente e/o scorrevoli dotate di maniglie e serrature cromo satinate marca Doorarreda o simile. Gli infissi saranno in PVC doppio vetro colore interno bianco, con il profilo del telaio e del battente a 5 camere, larghezza 70 mm; le finestre interne ed esterne saranno in EPDM, vetri basso emissivi adatti alle normative di risparmio energetico. Infine le tapparelle saranno in RAL come da condominio e saranno motorizzate.

A completare la soluzione, verrà installato un impianto  di riscaldamento caldo/freddo canalizzato nel controsoffitto

Durante la fase di ristrutturazione, la quale è in corso, sarà possibile modificare o scegliere i materiali o le colorazione con eventuali variazioni di prezzo.

DETTAGLI E RIFINITURE:

  • Porta d'ingresso blindata;
  • Infissi in PVC doppio vetro;
  • Sanitari sospesi;
  • Maniglie e serrature cromo satinate;
  • Pavimentazione in gres porcellanato effetto legno;
  • Tapparelle motorizzate;
  • Impianto di riscaldamento caldo/freddo canalizzato nel controsoffitto;
  • Termoarredi;
  • Rivestimenti pareti effetto marmo;
  • Porte interne a battente o/e scorrevoli;
  • Nuovi impianti certificati.

Dati principali

  • BA.PAS.T20
  • LIBERO
  • Vendita
  • Appartamento
  • 70 m2
  • 3
  • 2
  • Intera
  • si

Costi

  • 185.000 €
  • 30 €

Efficienza energetica

  • 1960
  • Ristrutturato, Ottimo,
  • Autonomo
  • In attesa di certificazione

Vistocasa Bari San Pasquale

  • Viale Unità d'Italia ,  42 /  44 / 46  - 70125 Bari (BA)
  • Telefono: 080.9909370
  • Cellulare / WhatsApp: 3519508029
  • Email: barisanpasquale@vistocasa.com

Indirizzo e mappa


Acconsento al trattamento dei dati personali come da Informativa Privacy
Consenso per attività di marketing *
Invia Email

Altri annunci simili

Cookies Settings